
Saqqara.
La piramide
a gradoni di
Zoser vista
dal deserto.
(foto Davide
Turrini)
Prime, le
pietre
d’Egitto*
L’ambiente,
con le sue
risorse, con
la sua
particolare
conformazione
geologica,
ha
condizionato
e
caratterizzato
l’architettura
sin dalle
sue origini.
A fronte
della
civiltà
mesopotamica,
che produce
un’architettura
monumentale
sia per
l’intonazione
simbolica
che per la
scala
dimensionale,
basata
prevalentemente
sull’uso di
mattoni
crudi, la
valle del
Nilo
consegna
all’Egitto -
insieme
all’argilla
e a copiose
materie
vegetali -
una
ricchezza e
una grande
varietà di
litotipi,
ottime
pietre da
costruzione
e da
ornamentazione
(arenarie e
calcari, le
più usate,
ma anche
graniti,
porfidi,
brecce,
alabastri,
basalti,
quarziti),
che sono
alla base
delle prime
manifestazioni
applicative
in campo
architettonico.
(1)
Nel momento
in cui la
pietra viene
trasferita
dal banco
roccioso
alla
fabbrica -
o, se si
vuole,
dall’orizzonte
della natura
a quello
dell’arte -
si pone,
indubbiamente,
il problema
della forma
o meglio
delle forme
che la
materia può
assumere.
L’atto
cosciente
dell’uomo
consiste
nell’assegnare
significati
tecnici, nel
conferire
misure e
ritmi ai
blocchi di
pietra che
sono
estratti
dalla
montagna.
Lungo tutto
il IV
millennio a.
C. (e sino
al periodo
protodinastico)
non è la
pietra a
contrassegnare
le
costruzioni
dello Stato
egiziano in
formazione.
La grande
architettura
emerge in
forma
brillante,
come dal
nulla, a
partire
dall’Antico
Regno sugli
altopiani
desertici e
assolati di
Saqqara,
dove Imhotep
innalza lo
straordinario
complesso di
edifici
funerari per
il re Zoser,
sovrano
della III
dinastia
(circa 2695
a. C.). Si
tratta della
prima
manifestazione
su scala
esplicitamente
monumentale,
un’opera
interamente
in pietra
perfettamente
squadrata.
Nel vasto
recinto di
questo primo
complesso
possiamo
rintracciare,
in una
espressione
già
straordinariamente
evoluta, gli
esordi di
una nuova
tradizione
che intende
dare
all’architettura
perfetti e
duraturi
valori
geometrici.
Abbiamo
guardato e
riguardato
più volte,
con
continuità
ed
insistenza,
le rovine di
Saqqara per
penetrarne a
fondo
l’intima
natura, per
cogliere il
“senso
generale”,
l’essere
della pietra
in questa
sua prima,
straordinaria
apparizione.
E’ evidente
come a
Saqqara non
siamo più di
fronte alla
ricerca e al
mero
accumulo di
materia
litica
erratica ed
informe; con
Imhotep si
concretizza,
d’un colpo,
la prima
sperimentazione
con la
pietra, che
viene
“cavata”
nelle
dimensioni
adatte a uno
specifico
scopo ed
indirizzata
a finalità
architettoniche
ben
definite. La
roccia,
staccata dal
monte, è
assoggettata
agli
utensili che
la lavorano
e la
modellano,
restituendola
squadrata,
affilata,
arrotondata,
corrugata,
configurata.
Per cogliere
il senso e i
risultati
raggiunti da
Imhotep nel
complesso di
Zoser è bene
riferirsi,
sia pur
incidentalmente,
alla
tradizione
funeraria
dei suoi
predecessori.
Dopo il mito
dell’unificazione
dell’Egitto
si assiste,
a partire
dalla I
dinastia,
alla
fondazione
di
un’immagine
pubblica e
dominante
della
regalità
attraverso
l’architettura;
si tratta
dei primi
passi verso
uno
specifico
simbolismo
delle
immagini,
connesse
alla ricerca
di una scala
propriamente
rappresentativa
e
monumentale.
I primi
sovrani
egizi
scelgono di
farsi
seppellire
nella calma
del deserto,
al riparo
delle
inondazioni
del Nilo,
commissionando
ai loro
architetti,
funzionari
di corte e
costruttori,
l’allestimento
di tombe -
le famose
mastabe
- capaci di
“marcare” la
distanza che
separa il re
dal popolo e
di
sublimare,
attraverso
dimensioni e
ricchezza
ornamentativa,
il segno
della
regalità.
Sin dalla I
dinastia
s’inizia ad
erigere
tombe regali
monumentali,
ma si
adotta, con
continuità,
la tecnica
costruttiva
in mattoni
di argilla
cruda per
dar corpo a
manufatti
caratterizzati
da muri
massivi,
“ritmati” da
nicchioni in
serie,
secondo il
cosiddetto
“stile
architettonico
a facciata
di palazzo”.
Lo stesso
materiale è
impiegato,
in forma
generalizzata,
per
l’edificazione
di mura
urbiche, di
case, di
palazzi di
corte, di
edifici
cultuali.
(2)
La sepoltura
regale
meglio
conservata è
la
cosiddetta
tomba di
Shunet
ez-Zebib ad
Abido,
legata al
nome del re
Khasekhemui,
ultimo
sovrano
della II
dinastia,
disposta in
una fossa
scavata nel
deserto e
delimitata
da un doppio
circuito
murario in
mattoni di
argilla
cruda. Il
recinto
interno -
come il
perimetro di
un grande
cortile
(54x113m),
spazio
simbolico
per il rito
dell’apparizione
reale -
è circondato
da un muro
che si
innalza, in
alcuni
tratti, per
11m (e
ostenta uno
spessore di
ben 5,5 m);
sulla
facciata
s’impone un
modellato
plastico del
corpo di
fabbrica,
ottenuto
mediante
delle
nicchie che
sfruttano
l’effetto
chiaroscurale
di pannelli
ritagliati
su piani
progressivamente
arretrati
nella
profondità
della
parete.
Il motivo
decorativo a
pannelli
delle tombe
reali è
stato, da
tempo,
ricondotto
dagli studi
archeologici
all’immagine
del palazzo
dei sovrani
di età
protodinastica.
Rinvenimenti
materiali,
al di fuori
dei contesti
funerari, di
tale
accurato
trattamento
architettonico
e
riferimenti
indiretti di
natura
figurativa
(qual è da
intendersi
il motivo
stilizzato
connesso al
nome di
Horus, re
Get della I
dinastia)
sembrano
confermare
l’adozione
della
“facciata a
nicchie”
quale
simbolo
distintivo
di
autorappresentazione
regale:
attraverso
le
dimensioni e
il
trattamento
del
modellato
parietale
altamente
caratterizzato
si intende
sottolineare
il dominio
assoluto, il
“rango” che
distingue il
sovrano.

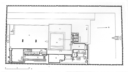
Saqqara.
Planimetria
generale del
complesso
funerario di
Zoser.
(1, Piramide
a gradoni;
2, Tempio
funerario;
3, Cortile;
4, Grande
cortile con
altare; 5,
Colonnato;
6, Cortile “hebsed”;
7, Piccolo
tempio; 8,
Cortile
frontistante
il palazzo
meridionale;
9, Cortile
del palazzo
meridionale;
10, Tomba
meridionale)
Alla
distanza di
una sola
generazione
dalla Shunet
ez-Zebib
s’impone, su
un orizzonte
di diversa
tecnica e
scala
architettonica,
il complesso
funerario
della
piramide a
gradoni di
Saqqara.
Frutto di
una lunga
attesa e di
una lenta
preparazione
- dopo
essersi
esercitato
su
costruzioni
di semplice
funzionalità
e
utilizzando
materiali
poveri e
deperibili -
il talento
umano inizia
ad
esprimersi
pienamente
attraverso
un atto
individuale
di
genialità;
solo così
possiamo, al
momento,
interpretare
la
concezione
della forma
solenne e
spettacolare,
la semplice
ma grandiosa
immagine di
“scala di
pietra” che
Imhotep
innalza per
il suo
sovrano
Zoser. La
piramide,
posta al
centro di un
insieme di
edifici
cultuali, si
staglia
solenne
sull’orizzonte
nella vasta
necropoli di
Saqqara, ai
bordi della
piana oltre
la quale
regna il
deserto. E
qui, ancora
oggi, si
cerca la
tomba di
Imhotep,
grande
consigliere
di re Zoser,
creatore
della
piramide,
“codificatore”
dell’arte di
costruire
con la
pietra,
primo dei
grandi
architetti
della
storia. (3)
Immerse
nella
solitudine
del deserto,
le pietre
messe in
opera in
forma
solenne
richiedono
il massimo
di
attenzione e
di intensità
d’ascolto
per cogliere
il loro
valore, la
loro magia;
su tutto
primeggia la
sabbia, da
cui emerge
la pietra,
stratificata
nel cumulo
monumentale
della
piramide a
gradoni. A
Saqqara la
pietra,
nella sua
potenza e
solennità
originaria,
ci parla
“meglio” di
qualsiasi
altro luogo
delle
origini
dell’architettura
in pietra.
La genialità
che avvolge
l’opera di
Imhotep
appare
ancora più
grande in
quanto la
ricerca
archeologica
non ha
finora
documentato
sperimentazioni
anteriori
(testimonianze
di fasi meno
evolute) che
attestino
l’impiego
della pietra
da taglio in
architettura.
Risulta
sbalorditivo
pensare come
dal nulla
sia stato
concepito e
raggiunto un
livello
tecnologico
così evoluto
all’interno
di un unico
programma
realizzativo;
tale
valutazione
assume
ulteriore
pregnanza se
si tiene
conto della
necessità di
formare una
massa
ingente di
artigiani,
dediti - con
determinazione
e precisione
-
all’escavazione,
alla
lavorazione,
al trasporto
e alla messa
in opera di
un numero
straordinario
di conci
sagomati di
pietra.
Sia visto da
lontano che
da una
posizione
più
ravvicinata,
il complesso
di Saqqara è
rappresentato
essenzialmente
- se non del
tutto -
dalla massa
ascensionale
della “scala
di pietra”
che, nel suo
ritmico
rastremarsi
verso
l’alto,
prefigura le
piramidi
classiche
delle
dinastie
successive.
Vi è chi,
nella
ricerca di
una
evoluzione
interna
all’architettura
egiziana, ha
visto nella
creazione di
Imhotep una
semplice
sovrapposizione
di tombe,
analogamente
alle
sepolture
dei sovrani
protodinastici
che sono
impilate
l’una
sull’altra a
costituire
una
colossale
scalinata
verso il
cielo;
secondo
questa tesi,
la piramide
a gradoni
non sarebbe
altro che
una forma
monumentale
della
mastaba. Pur
ammettendo
l’ipotesi di
una
continuità
interna, il
risultato
conseguito
da Imhotep
nell’innovare,
ad un tempo,
forma e modi
costruttivi
resta
assolutamente
sorprendente.
Nessuno può
mettere in
discussione
la sua
genialità
nel
definire, in
termini di
massa litica
e di
verticalità
volumetrica,
il monumento
di Saqqara,
un’opera
che, nella
sua forma
solenne, si
stacca
profondamente
da qualsiasi
precedente e
pone le basi
per una
nuova
tipologia
monumentale.
E’ stato
ripetutamente
precisato da
critici,
teorici,
storici come
l’architettura
s’inscriva -
a differenza
di altre
arti - in
uno spazio
vero (lo
stesso
spazio in
cui si
svolge la
nostra
esistenza
sulla
superficie
terrestre)
producendo,
a sua volta,
entità
spaziali
sottoforma
di “vuoti
interni”.
(4)
Raramente
essa è massa
unica,
inscindibile,
impenetrabile.
C’interessa
evidenziare,
invece,
come, nel
momento
straordinario
ed esaltante
degli inizi,
la creazione
architettonica
si presenti
in tutt’altro
modo. La
piramide di
Saqqara
sembra voler
spogliare
l’architettura
del suo
fondamentale
e peculiare
attributo,
la capacità
di creare
uno spazio
cavo,
esistenziale,
per proporsi
invece come
blocco
monolitico,
come massa
litica in
forma di
“montagna
artificiale”.
Insistiamo
sull’essenza
della
piramide
quale
entità-massa,
quale
tumulo, in
quanto
nessun’
altra opera
è riuscita
nella storia
dell’architettura
ad
interpretare
in forma più
solenne tale
caratteristica
della
pietra. Le
nozioni di
pianta, di
sezione, di
struttura
portante, di
spazio
interno -
così
fondamentali,
in generale,
per capire e
descrivere
l’architettura
- si
rivelano
qui, nella
fase inziale
dell’architettura
in pietra
superflue,
pleonastiche,
addirittura
fuorvianti.
Ricondotta
al cumulo
murario, la
piramide di
Imothep
acquista una
presenza
assoluta e
radicale
presentandosi
come solido
stereometrico
compatto;
rispetto al
purismo
geometrico
delle
piramidi
“classiche”,
la luce che
investe la
massa litica,
crea forti
chiaroscuri
contribuendo
a dar vigore
alla sua
forma; la
continuità
di
stratificazione
della pietra
impedisce
allo spazio
esterno di
penetrare
entro i
volumi da
lei
definiti; la
massa
rocciosa
ri-accumulata
sulla sabbia
di Saqqara,
incorruttibile,
non si
concede così
nè alle
lusinghe
dello
spazio, nè
alle insidie
del tempo.
(5)

Saqqara,
cortile
dell’apparizione
reale.
(foto:
Giulio De
Cesaris)
La “scala
di pietra”,
ponte per
l’immortalità
La scala di
Imhotep
conduce
l’anima del
faraone, nel
modo più
diretto ed
intenso, al
cielo; è
un’architettura
“simbolica”,
quindi,
prima che
utilitaria.
In una fase
storica in
cui il
potere si è
consolidato,
la ricchezza
si è
accumulata e
la regalità
si è
mitizzata,
si chiede
all’architettura
e all’arte
un
contributo
significativo
e
imperituro.
Torniamo, da
questa
particolare
prospettiva,
all’opera e
riflettiamo
per un
attimo sul
suo
significato
più
profondo,
più umano,
più
originario.
Siamo tutti
mortali. La
consapevolezza
della
transitorietà
su questa
terra si
contrappone
alla
dimensione
dilatata ed
infinita del
tempo. E’
solo a causa
dell’essere
mortali,
votati al
cambiamento
biologico e
all’irreversibile
deperimento
del corpo,
che abbiamo
codificato
il fenomeno
invisibile
del tempo
quale flusso
di istanti
che scorrono
in avanti
senza posa.
Un tempo, la
cui marcia
incessante
sembra
“prodursi”
in una sola
direzione,
alimentandosi
di un
presente
in costante
divenire:
alle spalle
il
passato
appena
vissuto, o
il passato
remoto delle
generazioni
che ci hanno
preceduto;
di fronte il
futuro
che ci
aspetta,
ancora
sconosciuto,
o quello che
non potremo
mai
conoscere.
Senza l’eperienza
della morte
altrui e la
consapevolezza
che anche la
nostra vita
inesorabilmente
avrà fine,
il tempo non
avrebbe
senso, non
avrebbe
ragione di
esistere.
Contiamo i
giorni solo
perché lo
scorrere del
tempo è
associato
indissolubilmente
alla
modificazione,
all’invecchiamento
del nostro
corpo. La
finitudine
della vita
che si
oppone
incessantemente
alla
dimensione
senza fine
del tempo
conferisce
valore al
durevole, al
permanente,
al
trascendente.
Ad
un’analisi
superficiale,
la “partita”
fra
un’esistenza
fin troppo
“a termine”
e il senso
incombente
del tempo
infinito
avrebbe
dovuto
privare di
valore la
breve
esistenza e
lo stesso
agire umano.
E invece è
proprio la
misura del
tempo, la
consapevolezza
del suo
fluire e
dell’inesorabile
approssimarsi
della morte,
che
conferisce
senso e
valore alla
breve
esistenza
dell’uomo.
Come avverte
Zygmunt
Bauman, “la
vita ha
valore e i
giorni hanno
peso perché
come esseri
umani siamo
consapevoli
della nostra
mortalità”.
Tale
consapevolezza
diventa,
alla fine,
il motore di
“sfide” e di
“strategie”
di vita
attraverso
cui creare
qualcosa che
superi i
limiti
dell’umano e
dell’ordinario.
Nella
distanza,
apparentemente
incolmabile,
fra caducità
dell’esistenza
e
durevolezza
del tempo,
fra
mortalità e
valori
eterni, si
pone la
necessità di
introdurre
dei “ponti”
capaci di
prolungare
la vita
oltre la
morte, sia
pur
attraverso
la mera
sopravvivenza
del ricordo
di chi li ha
creati.
Solo nel
breve
intervallo
che separa
la nascita
dalla morte
(condizione
esistenziale
del tutto
temporalizzata)
ci è data
un’occasione
di
trascendenza,
la
possibilità
di superare
la caducità
umana, per
mettere
piede nella
dimensione
della
storia, se
non
dell’eternità.
Nelle sfide
e nelle
strategie
messe in
atto per
eternare la
vita, ogni
giorno, ogni
singolo
istante può
essere usato
proficuamente,
tesaurizzato
oppure
consumato e
inutilmente
sprecato.
Nel breve
arco
dell’esistenza,
bisogna
essere in
grado di
realizzare
“cose”
capaci di
proiettare
la vita, pur
nella sua
condizione
di
transitorietà
(oggettivamente
condizionata
da azioni e
da compiti
contingenti
ed effimeri)
in una
dimensione
atemporale.
Possiamo
provare ad
immaginare
queste
“cose” come
“ponti” per
accedere
all’immortalità.
Rimane il
compito di
individuare
la natura di
questi
“ponti” e i
modi in cui
realizzare
opere,
dotate di
“presenza”,
di
“evidenza” e
al tempo
stesso
indirizzate
ad
agganciare i
valori
eterni, a
legare il
finito
all’infinito,
il breve al
duraturo, il
volatile al
solido,
l’esistenza
contingente
a condizioni
che siano
immuni
dall’azione
obliterante
del tempo.
Ci riferiamo
ai “ponti” -
di varia
natura e
tipologia -
di cui gli
esseri umani
hanno saputo
dare prova,
e che
testimoniano
del loro
immenso
talento
ideativo e
prefigurativo,
delle loro
straordinarie
capacità
tecniche;
opere che
sono state
spesso
concluse
nell’arco di
un’esistenza,
di una sola
generazione.
Ecco,
allora, che
riacquista
valore e
importanza
l’esistenza
terrena (sia
pure nella
sua
limitatezza
e fugacità)
e con
l’esistenza
il corpo
stesso
dell’uomo,
“impasto” di
essenza
spirituale e
di materia
biologica,
di pensiero
e di
pulsioni
generate dai
“fuochi”
delle
passioni.
«Se la
durata
dell’anima è
eterna -
usando
ancora le
parole di
Zygmunt
Bauman – in
confronto
con la vita
del corpo,
la sua breve
coabitazione
con il corpo
è solo un
breve
preludio a
una vita di
durata
infinitamente
maggiore e
dunque
infinitamente
più preziosa
e
importante.
Questo
preludio
assume
un’importanza
straordinaria:
tutti i
motivi, le
armonie, i
contrappunti
della lunga
opera che
segue devono
essere
abbozzati e
incapsulati
nel breve
arco
temporale.
La
coabitazione
con il corpo
può essere
visibilmente
breve in
confronto
con la
lunghezza
della
successiva
esistenza
solitaria
dell’anima,
ma è durante
questo
vivere
insieme che
si decide la
qualità
della vita
eterna:
l’anima da
sola non
sarebbe in
grado di
cambiare
alcunché del
suo destino.
Il mortale
ha un potere
sull’immortale:
la vita
mortale è il
solo tempo
si
accumulano
crediti per
l’eternità.
“Dopo”
significa
troppo
tardi. Così
i portatori
mortali di
anime
immortali
contano i
giorni e i
loro giorni
contano. (…)
Il corpo si
disintegrerà
nella
materia
organica -
la polvere
tornerà
polvere - ma
la “persona”
(come
l’anima di
ieri)
persisterà
nel suo
essere
individuale.
Gli esseri
umani sono
mortali; la
loro gloria
può
sopravvivere
alla morte.
Questo ponte
svolge molto
bene la sua
funzione:
anzi, esso
fornisce il
legame tra
transitorietà
e durata che
è il destino
dell’uomo e
la durata
che è una
conquista
umana.
Ancora una
volta vale
la pena di
contare i
giorni, e di
nuovo i
giorni
contano.
Importa come
si vive la
propria
esistenza;
ci si deve
guadagnare
il ricordo
dei posteri,
accattivandosene
i favori
attraverso
l’arricchimento
delle loro
vite non
ancora
generate o
costringendoli
al ricordo
imprimendo
la propria
impronta
personale
sulla forma
del mondo in
cui
abiteranno.
Tutti
moriranno ma
alcuni
rimarranno
nel mondo
finché ci
sarà
qualcuno a
ricordare, i
documenti di
archivio non
saranno
caduti a
pezzi e i
musei non
saranno
stati
bruciati.
Questo tipo
di ponti si
costruisce
dagli albori
della storia
(anzi, la
storia è
cominciata
con la
costruzione
di simili
ponti): i
primi
costruttori
furono i
despoti e i
tiranni.
Faraoni e
imperatori
disposero
che i loro
resti
venissero
tumulati in
monumenti
funebri in
grado di
sfidare il
tempo e che
nessun
passante
potesse
ignorare; le
storie delle
loro gesta
dovevano
essere
scolpite su
pietra
indistruttibile
o intagliate
su colonne e
archi che
nessuno
potesse
aggirare.
Gli
individui
che
costruirono
le piramidi
e
cesellarono
le tavolette
rimasero
anonimi e
perirono
senza
lasciare
tracce, ma
le loro
fatiche
spianarono
la strada
all’immortalità.»
(6)
In questa
ricerca
d’immortalità
da parte
dell’uomo,
la piramide
di Saqqara -
al pari
delle altre
che
seguiranno -
ci mostra,
per prima,
insieme alla
forza
sublime del
monumento,
l’intrigante
rapporto
esistente
fra l’opera
e i suoi
produttori,
un rapporto
che
scaturisce
dall’individuazione
del “vero
creatore” e
dei
“beneficiari”
della luce
della
celebrità.
E’ questo un
aspetto che
interessa
già gli
antichi. (7)
Ma, al di là
dei crediti
da
attribuire
agli attori,
responsabili,
a vario
titolo,
della
costruzione
dei “ponti”,
eretti per
prolungare
la vita
oltre la
morte, è
necessario
evidenziare
come sia
sempre
l’uomo - con
la propria
abilità,
talento e
genialità -
a creare
opere capaci
di
sopravvivere
alle civiltà
che le hanno
realizzate;
per
raggiungere
tale
risultato,
il genere
umano deve
affidare la
propria
innata
aspirazione
all’eternità
alla
fisicità
corposa ed
immota delle
“cose”
inglobando
tale afflato
spirituale,
paradossalmente,
nella
silente ed
inanimata
materia.
Se i
villaggi
costruiti
con essenze
vegetali o
con mattoni
di fango si
disfanno o
vengono
dissolti
dalle
piogge,
l’azione
distruttrice
del tempo
non deve
intaccare la
saldezza
della
piramide di
Zoser,
ideata per
durare in
eterno.
Imhotep
individua
nella pietra
il nuovo
materiale
adatto allo
scopo e si
attrezza per
realizzare
l’impresa:
organizza
squadre di
operai che
lo
estraggono
dalle
colline di
Turah, altre
che
trasportano
i blocchi
grezzi in
barche sulle
acque del
Nilo fino a
Saqqara,
altre ancora
che
sollevano i
massi fino
al punto di
collocazione,
dove gli
artigiani
della pietra
(i primi
“lapicidi”
della
storia) li
sagomano per
metterli in
opera
definitivamente;
l’intuizione
originaria
nello
scommettere
sulla
qualità e
sulla durata
della
pietra, e
insieme la
maestosità
della mole
litica
scalettata,
testimoniano
del talento
e della
gloria
dell’architetto
che,
attraverso
la propria
intelligenza,
ha osato
sfidare il
tempo e
l’oblio
della morte.
A suo onore
può essere
citato il
proverbio
arabo:
“L’uomo teme
il Tempo, ma
il Tempo
teme le
Piramidi”.
E’ probabile
che il
costruttore
della
“piramide a
gradoni” sia
il primo
genio, il
primo grande
creatore
dell’architettura
che intuisca
il valore
saldo,
durevole,
corposo,
plastico
della
pietra,
“distillandolo”
direttamente
dagli
spettacoli
meravigliosi
della natura
(orizzonte
principale,
se non unica
fonte di
ispirazione,
in un’epoca
così remota
della
civiltà
umana).
Imitare,
provare ad
eguagliare
la solennità
dei monti
può essere
stato alla
base
dell’originaria
idea
architettonica;
il talento
di Imhotep
risiede
nell’estrarre
la roccia e
poi nel
“ricomporre”
le pietre
dure in
forme
sublimi.
Quando i
sudditi di
Zoser
indirizzano
per la prima
volta il
proprio
sguardo
verso il
grandioso
tumulo
litico ne
ricevono -
inevitabilmente
- una
sensazione
di
vertigine,
intrisa di
reverenza e
timore,
posti, con
le loro
finitissime
dimensioni,
al cospetto
di quelle
colossali
della
piramide a
risalti,
mole
architettonica
di
dimensioni
straordinarie
e insieme
metafora
simbolica,
comprensibile
da tutti:
una scala di
oltre
sessanta
metri di
altezza, che
si staglia
sul
paesaggio
d’Egitto,
una scala
con cui
l’anima del
sovrano può
ascendere al
cielo
unendosi
agli dei
nell’immortalità.
Nel sabbioso
altopiano di
Saqqara si
assapora
ancora oggi
il silenzio
magico del
deserto e
l’inalterabile
saldezza
delle
pietre. Si è
di fronte ad
uno
spettacolo
“mozzafiato”,
quasi la
“materializzazione”
di un
grandioso
miraggio. E
un effetto
del genere,
sicuramente,
il suo
creatore si
è proposto
di
suscitare.
Ai miti e ai
grandi
eventi siamo
soliti
associare
forme
comunicative
di genere
narrativo,
capaci di
parlare al
pensiero,
alla cultura
intesa come
accumulo di
conoscenza e
di memoria.
Ma i fatti
mitici
(associati
spesso al
meraviglioso,
all’inusuale,
al sublime)
non poggiano
sempre ed
unicamente
sull’orizzonte
interiore,
pacato e
distaccato,
della
ragione.
Anzi, nella
lunga storia
dell’uomo,
frequentemente
traggono
origine dal
valore
ontologico
delle “cose”
capaci di
produrre, in
forma
immediata e
subitanea,
stati
d’animo di
sommovimento,
di stupore,
di
vertigine,
di forte
emozione;
arte e
architettura,
con i loro
caratteri
peculiari e
distintivi,
sono state
indirizzate
- più di
ogni altra
manifestazione
dell’attività
umana -
verso questa
particolare
strategia,
che potremmo
definire
dell’assalto
ai sensi.
La “scala a
gradoni” di
Imhotep
rappresenta
in questa
linea di
azione
l’antesignana
di ogni
svolgimento
futuro;
oltre che
alla
spiritualità
e all’anima
intende
rivolgersi
ai sensi e
al
“paesaggio”
interiore
delle
emozioni.
Riguardabile
come primo
colosso di
pietra della
storia
universale
dell’architettura,
è posta ad
eguagliare
la
maestosità
della natura
”gettando”
chi vi si
avvicini in
uno stato di
sbigottimento,
di
soggezione.
Le
dimensioni
della mole
litica
(larghezza,
altezza,
volume,
massa),
quindi, come
prima
connotazione
specifica e
“meravigliosa”
dell’architettura
di pietra
che, con la
sua scala
gigante,
riduce a
misere
proporzioni
la misura
corporea
degli
uomini. (8)

Saqqara.
La piramide
a gradoni di
Zoser.
(foto Davide
Turrini)
Liticità
“altre” a
Saqqara
Il complesso
funerario di
re Zoser non
è costituito
soltanto
dalla
piramide a
gradoni, che
si innalza
nel deserto
come una
gemma. Siamo
di fronte a
un complesso
ricco di
sorprese, di
manufatti
architettonici
ideali,
“fissati”
indelebilmente
con la
pietra, che
non
smetteranno
mai di
esercitare
una
influenza
sull’architettura
dell’Egitto.
Proponiamo
ora una
lettura più
ravvicinata,
“per parti”
significative
e
caratterizzanti,
coscienti
che il
valore più
autentico
dell’opera
monumentale
di Imhotep
risieda
nella
composizione
d’insieme.
I “fuochi”
di tale
composizione
ruotano
intorno a
tre gruppi
di elementi:
la piramide
a gradoni e
i suoi
annessi, su
cui ci siamo
lungamente
soffermati,
il grande
recinto
murario in
“stile di
palazzo”,
infine gli
spazi e i
manufatti
cultuali
disposti
all’interno.
La
piattaforma
funeraria
del
complesso,
posta ad
occupare una
superficie
rilevante di
circa
quindici
ettari
(278x545 m),
si annuncia
attraverso
un poderoso
muro di
cinta (alto
10,50 m),
strutturato
in prospetto
mediante
sporgenze e
rientranze
(in sostanza
una versione
semplificata
dello stile
a “facciata
di palazzo”)
con una
serie di
bastioni;
questi sono
disposti a
distanze non
perfettamente
costanti e
simulano
ingressi
turriti,
riportando
scolpite
sulla pietra
tredici
false doppie
porte;
l’unico vero
ingresso
all’area
sacra si
trova,
invece, sul
lato
sud-est.
Nella
strutturazione
planimetrica
si
rintraccia
l’influenza
dell’antecedente
tomba reale
della Shunet
ez-Zebib di
Adibo.
La
costruzione
del circuito
murario - al
pari delle
architetture
cultuali
interne - è
effettuata a
mezzo di
“piccoli”
blocchi
squadrati
che danno
origine a un
paramento
molto
accurato;
all’esterno
i conci
porosi della
pietra
locale sono
sostituiti
con quelli
di un
calcare più
fine e
compatto,
proveniente
dalle cave
di Turah,
sull’opposta
riva del
Nilo. Le
dimensioni
degli
elementi
litici sono
confrontabili
con quelle
dei mattoni
d’argilla
cruda in uso
nella
tradizione
egiziana sin
da IV
millennio a.
C. L’altezza
dei blocchi
- e
conseguentemente
dei filari,
che li
organizzano
in assise
regolari ed
allineate
secondo
piani
paralleli ma
non costanti
- oscilla
dai 20 ai 26
cm; la
lunghezza è
anch’essa
non
uniforme,
dando vita
ad
un’apparecchiatura
con giunti
verticali
variati ad
ogni ricorso
della
muratura.
È questo il
primo muro
litico
dell’architettura
mediterranea
traduzione
stereometrica
dei più
antichi
mattoni di
argilla
cruda e dei
relativi
dispositivi
assemblativi.
I tratti del
recinto che
sono
attualmente
visibili, e
che mostrano
la
figurazione
“originaria”
di un
significativo
settore del
circuito
sacro, sono
per larga
parte
ricostruzioni
filologiche
realizzate
da
Jean-Philippe
Lauer con
pietre
raccolte
prevalentemente
sul sito; se
dallo spazio
antistante
il complesso
si contempla
il manufatto
monumentale
nel suo
insieme, si
intuisce il
rapporto che
doveva
esistere
originariamente
tra i vari
elementi: la
piramide a
gradoni che
si sviluppa
verso
l’alto, in
posizione
dominante, e
il muro
perimetrale,
in basso,
destinato a
proteggere
(e a
“celare”)
gli spazi
insieme ai
manufatti
cultuali del
complesso
funerario.
All’interno,
differentemente
da quella
che sarà
l’evoluzione
futura
dell’architettura
egiziana, la
composizione
non presenta
un’organizzazione
rigorosamente
assiale e
simmetrica;
tale
acquisizione
sarà frutto
delle
successive
realizzazioni
faraoniche.
A Saqqara
Imhotep
struttura un
impianto
spaziale più
sperimentale
ed
articolato;
un
raggruppamento
di luoghi
enucleati
l’uno
dall’altro:
l’ingresso
“colonnato”,
il grande
campo, il
cortile con
gli annessi
della festa
di
rigenerazione
del faraone
(hed-sed), i
cortili dei
Palazzi del
Nord e del
Sud, il
cortile e il
Tempio
funerario.
Intraprendiamo,
ora, il
viaggio
iniziatico
in uno
spazio
completamente
di pietra,
che è alle
origini
della storia
della
civiltà
mediterranea;
è possibile
scoprire in
esso la vita
della
materia
litica,
chiamata a
“rappresentare”
e
“re-interpretare”
altri
materiali,
altri stili
di
costruzione.

Saqqara,
il recinto
murario.
(foto:
Giulio De
Cesaris)
Si è spesso
sostenuto (e
sostanzialmente
a ragione)
che
l’architettura
egizia,
eminentemente
volumetrica
e massiva,
sia
rifuggita
dallo spazio
e che abbia
fondato il
suo
linguaggio,
i suoi
caratteri
specifici,
sul
megalitismo,
sulle
relazioni
fra corpi
tridimensionali,
enfatizzati
attraverso
la
modellazione
e la
plasticità
delle parti.
Gli spazi
interni, s’è
detto, sono
sempre
frammentari
e
subordinati
ai volumi
(siano,
questi
ultimi,
impenetrabili
come le
piramidi
oppure
“scavati”
ritmicamente
come gli
ordini
colonnari
dei templi);
le masse si
presentano
come entità
più
importanti
degli spazi;
non vi è un
sostanziale
invito alla
permanenza,
allo
“stazionamento”,
bensì una
continua
sollecitazione
al
movimento,
al cammino,
in un
orizzonte
litico
maestoso, in
una sorta di
pellegrinaggio
perenne.
Tale
intonazione
generale,
che si
conserverà
per tutta la
storia
dell’architettura
monumentale
egiziana,
trova nel
complesso
del re Zoser
a Saqqara
una conferma
che, ancora
una volta, è
l’anticipazione
degli
sviluppi
futuri.
L’unico
spazio
interno di
una certa
rilevanza
dimensionale
è quello
corrispondente
alla lunga
sala
processionale,
posta
perpendicolarmente
al recinto
sacro, al di
là della
porta di
ingresso
all’area
sacra
nell’angolo
sud-est. Si
tratta di un
viale
fiancheggiato
da lunghe
teorie di
semicolonne
rastremate
(alte 6,70
m) la cui
configurazione
riproduce
fasci di
steli di
giunco i
quali,
ripropongono
nella pietra
la forza
ascensionale
del
vegetale,
mentre le
lastre del
soffitto -
poste a
chiudere, in
alto,
l’invaso
spaziale -
raffigurano
tronchi di
palme
accostati.
Dietro la
porta, molto
stretta, si
scopre un
“colonnato”
a due file
contrapposte;
anche il
passaggio
fra le
semicolonne
rimane
strettissimo,
quasi a
voler
sottolineare
il processo
iniziatico
connesso
all’entrata
nel recinto
sacro;
questo
antro,
dall’atmosfera
cupa e
misteriosa,
conduce ad
un piccolo
ambiente
destinato a
riti di
purificazione
e allestito
con otto
colonne
molto più
basse di una
seconda
serie di
colonne
(innalzate a
sorreggere
un tetto
piano),
quasi a
suggerire al
visitatore
di
inchinarsi
prima di
procedere
verso la
piramide di
re Zoser.
Il colonnato
ipogeo
immette
nella zona
centrale del
recinto
sacro, che
si presenta
attraverso
un vasta
corte,
simile a un
grande campo
a cielo
aperto
(108x187m),
direttamente
ai piedi
della
piramide a
gradoni.
Tale invaso
è chiuso
perimetralmente
da muri di
pietra a
pannelli
recanti, in
cima, un
fregio con
serpenti
urei; gli
stessi che
si vedono
spesso
raffigurati
sulla fronte
dei faraoni.
Si tratta,
ancora una
volta, della
traduzione
in pietra
del motivo
decorativo
“a facciata
di palazzo”
in voga
dagli inizi
della I
dinastia.
Disposti
lungo l’asse
centrale del
cortile, si
trovano due
cippi e una
piattaforma
elevata da
terra di
alcuni
gradini;
questa
combinazione
può essere
ricondotta a
scene d’età
protodinastica
e agli
stessi
pannelli
rinvenuti
nei
corridori
funerari che
raffigurano
re Zoser
mentre
cammina con
passi veloci
tra due
mucchi
confinari di
pietre. I
cippi a
ferro di
cavallo
indicano
limiti
territoriali
(simbolicamente
l’estremo
confine
meridionale
e quello
settentrionale
dell’Egitto),
la
piattaforma
sopraelevata,
invece,
rappresenta
la pedana
regale da
cui il
sovrano
scende per
compiere
“corse
rituali” (da
intendersi
come presa
di possesso
delle terre
del regno)
oppure dalla
quale
presiede -
in posizione
solenne ed
immota -
alle
cerimonie
ufficiali.

Saqqara,
il colonnato
ipogeo
d’ingresso
al recinto
sacro.
(foto Davide
Turrini)
Il vasto
cortile di
fronte alla
piramide è,
quindi, lo
spazio di
“apparizione
del re”, lo
spazio in
cui il
sovrano può
essere
contemplato
in una
cornice di
autorappresentazione,
nella vita
di
trascendenza
che gli è
concessa
oltre la
morte.
Sul lato sud
si apre un
pozzo che
conduce ad
una delle
due tombe
del faraone,
che è
contrapposta
a quella
collocata
sotto la
piramide a
gradoni,
destinata a
custodire
non la
salma, ma
l’anima
invisibile
del sovrano.
Proseguendo
nella visita
al complesso
di re Zoser
è possibile
rilevare -
oltre l’eco
della
tradizione
in mattoni
crudi nello
stile a
“facciata di
palazzo” -
la presenza
in filigrana
di una
seconda
tradizione
costruttiva
che
eserciterà
un’influenza
duratura
sulla futura
architettura
egiziana in
pietra. Ci
riferiamo
alla
tipologia
dei templi
locali del
periodo
protodinastico
(con
intelaiatura
in travi
lignee e
chiusure
parietali in
pannelli di
stuoie) che
ricevono
proprio a
Saqqara una
“traduzione
litica”
dell’originaria
configurazione
a
tabernacolo-tenda,
diventando
modello
duraturo ed
influente
per
l’architettura
templare.
(9)
Lungo il
lato
orientale
del recinto
si
raggruppano,
in modo
enucleato e
con accessi
“tortuosi”,
vari edifici
che
completano
il complesso
funerario;
si tratta di
una serie di
manufatti
molto
particolari,
posti a
rappresentare
le
“dipendenze
cultuali”
della tomba
reale.
Il primo
nucleo
riguarda il
particolarissimo
spazio-corte
connesso
alla festa
heb-sed, una
delle
rappresentazioni
rituali
fondamentali
dell’antica
monarchia
egiziana. Si
tratta della
celebrazione
del grande
giubileo,
che
scandisce il
regno
terreno del
sovrano al
termine di
un periodo
di trent’anni,
finalizzato
a rigenerare
il vigore
fisico e
spirituale
del faraone,
intaccato
dall’esercizio
del potere e
dal peso
delle
responsabilità
di governo.
Numerose
raffigurazioni
dell’Antico
Egitto
restituiscono
scene
istituzionali
di tale
evento
regale.
Saqqara ci
viene
incontro ad
illustrare,
volumetricamente
e
spazialmente,
tale
cerimonia
grazie alla
solida
scenografia
allestita
con
manufatti di
pietra. Una
serie di
edifici
ritmicamente
allineati,
addossati ai
lati lunghi
di una corte
parallela al
muro di
cinta, sono
posti a
rappresentare
i tempietti
delle
divinità
provenienti
da tutte le
province del
Nord e del
Sud del
regno.
Le immagini
restituiteci
dal sito, in
larga parte
testimoni di
una
ricostruzione
filologica
ad opera di
Jean-Philippe
Lauer che
dal 1945 ha
condotto gli
studi e il
restauro del
complesso,
ci mostrano
una serie di
piccoli
edifici
impostati su
planimetrie
rettangolari,
i cui
modellati
reinterpretano,
attraverso
il solido e
corposo
materiale
litico, le
forme e gli
assetti
esili dei
tabernacoli-tenda
in legno e
stuoie.
L’insieme
litico,
altamente
volumetrico
e solido,
garantisce
al re Zoser
un ambiente
eterno per
la
celebrazione
della festa
heb-sed; nel
complesso di
Saqqara
siamo di
fronte ad
una
replicazione,
su larga
scala, di
tutto
l’arredo
(cappelle,
chiostri,
troni ecc.)
necessario
alla
celebrazione
del giubileo
regale. Gli
edifici
escludono
ogni
possibilità
d’uso (le
porte sono
scolpite
sulle
pareti, gli
spazi
interni
risultano
cortili
ciechi
circondati
da muri)
proponendosi
come modelli
prim’ancora
che come
edifici veri
e propri;
tali
prototipi,
realizzati
con il
calcare di
Turah,
influenzeranno
tutta la
futura
l’architettura
templare in
pietra.
Negli
edifici che
arricchiscono
lo scenario
del cortile
dedicato al
giubileo
reale sono
rintracciabili
ulteriori
trascrizioni
litiche
legate al
tema
colonnare.
Un organico
naturalismo
è leggibile
nelle
semicolonne
addossate ai
muri del
Palazzo del
Nord; di
sezione
vagamente
triangolare,
tali
supporti
riproducono
le piante di
papiro, sia
nel fusto
che nella
chioma,
presentando
un
trattamento
stilizzato
dei
capitelli
con foglie
aperte
pendenti
verso
l’esterno.
Ad offrire
un’ulteriore
variante al
tema sono
poste le
colonne,
sovrapposte
ai muri del
Palazzo del
Sud,
trattate con
motivi a
scanalature
concave che
rimandano a
tronchi
lavorati con
ascia a lama
convessa. La
particolare
forma di
questi
elementi
costruttivi
ha ricevuto
un’attenzione
storiografica
particolare,
vista la
loro
assonanza
con l’ordine
dorico
dell’architettura
greca.
Nel valutare
criticamente
la
traduzione
in pietra
delle
costruzioni
in mattoni
ed in
elementi
vegetali,
così come si
legge
all’interno
del
complesso
funerario di
re Zoser,
alcuni
storici
dell’architettura
antica hanno
parlato
d’immaturità,
di
incapacità
degli Egizi
di
interpretare
in modo
originale il
materiale
che si
affaccia per
la prima
volta nella
storia
dell’architettura.
E’ stato
rilevato
come le
antiche
forme
trasmigrate
nella nuova
tecnica non
abbiano
coerenza con
i materiali
litici; solo
le
generazioni
successive -
s’è detto -
saranno in
grado di
conseguire
la piena
padronanza e
valorizzazione
delle
potenzialità
della
pietra.
Per quanto
ci riguarda,
siamo di
diverso
avviso e
guardiamo
l’opera di
Imhotep da
una
prospettiva
particolare.
L’esperienza
c’insegna
che le
materie
dell’arte
non sono
intercambiabili
senza che si
produca una
modificazione
sostanziale,
“senza che
la forma -
per citare
Henry
Focillon -
passando da
una data
materia
all’altra,
subisca una
metamorfosi”.
Cerchiamo,
allora, di
guardare e
riflettere
con più
attenzione
sul
repertorio
formale che
il cambio di
materiali
produce a
Saqqara,
dove mattoni
di argilla
cruda e
supporti
verticali di
origine
vegetale
(sottoforma
di canne o
fusti di
pali) sono,
per la prima
volta,
trasposti
nella
pietra.
Sinora le
due tecniche
primitive,
che
utilizzano
risorse di
natura
deperibile,
sono
sostanzialmente
autonome e
inconciliabili
fra loro.
Rappresentano
due
tradizioni
architettoniche
con stili
costruttivi
e formali
distinti. Da
una parte,
abbiamo la
tecnica
dell’argilla
cruda, con
grandi
volumi di
materiale
“molle” che
va
sovrapposto
e fatto
gravare a
terra con
piani murari
di grande
spessore,
che non
possono
“aprirsi” ad
una logica
tettonica;
un
procedimento,
quindi,
sostanzialmente
ancorato e
bloccato
alla rigida
economia
muraria,
alla
stratificazione
e alla
continuità -
in
orizzontale
e in
verticale -
del
materiale,
configurato
in elementi
regolari di
forma
parallelepipeda.
Su una
diversa
logica
d’impiego si
pone,
invece, la
tecnica
lignea, dove
la
morfologia
dei suoi
componenti
di base
risulta in
primo luogo
caratterizzata
dalla
snellezza
degli
elementi di
partenza; in
tale sistema
costruttivo
non è più il
corpo
massivo del
blocco
murario a
predominare
bensì la
linearità,
l’intelaiatura
strutturale,
in cui una
dimensione
s’impone
sempre sulle
restanti.
Si tratta
quindi di
due
concezioni
dell’architettura
molto
distanti fra
loro,
separati da
una
sostanziale
diversità
morfologico-dimensionale
ed
insediativa
degli
elementi
costruttivi
di
riferimento:
massa versus
esilità,
stratificazione
continua nel
piano
murario
versus
infissione
“puntiforme”
nel terreno.
L’inedita
tecnica in
pietra da
taglio
fonde, per
la prima
volta nella
storia
dell’architettura,
due stili
tecnologici
che non
avevano mai
comunicato
fra loro. La
metamorfosi
avviene
attraverso
l’alchimia
di una
materia
solida e
duratura che
“fissa”,
all’interno
di una
tecnica
innovativa,
i due
elementi
costruttivi
archetipici
dell’architettura
delle
origini - il
muro e il
supporto
verticale -
fino a quel
momento
incapaci di
integrarsi,
in forma
coerente, in
un sistema
unitario di
composizione,
di progetto.
L’innovazione
più grande
di cui ci dà
testimonianza
il
microcosmo
in pietra di
Saqqara, è
proprio la
compiuta
integrazione
e
innovazione
della
tettonica
lignea
nell’alveo
della
stereotomia
litica;
Imhotep
traduce
nella pietra
lavorata
alcune
caratteristiche
figurative
dell’architettura
primitiva in
canne o in
legno
realizzando
infine una
trasposizione
monumentale
del tema
connesso ai
supporti
lineari
verticali.
In modo
sorprendente
vengono
“fissate”
nella pietra
le mezze
colonne (o
le colonne a
tre quarti)
addossate ai
muri di
calcare.
In questo
caso i fasci
di canne, i
fusti di
papiro, i
tronchi
lavorati ad
ascia,
prendono
corpo in un
diverso e
più durevole
materiale;
ciò
comporta,
alla fine,
un diverso
destino
formale, un
cambiamento
delle loro
dimensioni,
del loro
volume,
della loro
forza e del
loro
carattere
architettonico.
A causa di
una
specifica
scelta o,
forse, per
la mancanza
di un
dominio
completo
della nuova
materia,
l’azione
creativa si
arresta ad
un certo
punto,
impedendo
alla colonna
di
dispiegarsi
in piena
autonomia
come
“figura”
della
composizione
architettonica
e spaziale.
Il processo
è, comunque,
avviato.
(10)

Saqqara,
ingresso al
complesso
funerario.
Il
progetto
invisibile
Ci siamo,
forse,
troppo
attardati
sul
complesso
funerario di
re Zoser nel
tentativo di
cogliere -
nel momento
straordinario
del suo
esordio - la
vita della
materia
litica,
avviata
verso
l’arte.
Siamo stati
lungamente
fermi
sull’artefatto;
su quelle
rovine
“immote” ma
fisicamente
evidenti
che, pur
menomate dal
tempo e
dagli
uomini, sono
ancora così
salde sulle
sabbie del
deserto
egiziano e
sono parte
integrante
della storia
universale e
del mito.
Non è più
possibile
cogliere,
invece,
l’orizzonte
intellettuale,
tecnologico
e
burocratico
che ha
consentito
tali superbe
realizzazioni
e che è
connesso
all’organizzazione
di una
intera
società,
tesa a
gareggiare
con il tempo
e la natura,
a
“soggiogare”
la terra e
le sue rocce
per le
esigenze
rappresentative
di sovrani
desiderosi
di
immortalità.
Il recinto
murario, gli
edifici
cerimoniali
e la stessa
piramide a
gradoni
richiedono,
a monte, un
atto
ideativo
molto
preciso e -
allo stesso
tempo -
estremamente
ponderato e
pianificato;
in altri
termini
presuppone
un progetto
d’architettura
come mai
sinora è
stato.
Ma la
prefigurazione
dell’opera,
da sola, non
basta.
La
rivoluzione
introdotta
da Imhotep a
Saqqara non
è unicamente
di ordine
architettonico.
Innovare i
modi di
costruzione
introducendo
la pietra
squadrata
richiede il
coordinamento
fra
ideazione
(progetto),
approvvigionamento
della
materia
(escavazione
e
lavorazione
dei blocchi
litici) e
tecnica di
costruzione
(trasporto,
messa in
opera di
cantiere).
Si rende
necessaria,
soprattutto,
un’esatta
definizione
dell’opera
in una fase
notevolmente
anteriore
all’operatività
del
cantiere.
Tale
prefigurazione
deve essere,
inoltre,
“rappresentata”
e
“comunicata”
a mezzo di
elaborati
(piante,
sezioni,
disegni
quotati) o
di modelli
tridimensionali
capaci di
simulare i
modi e le
sequenzialità
di
costruzione
dell’opera,
ben prima
che un
ordine
regale
indirizzi e
incanali
uomini,
mezzi, e
materiali
litici verso
la
costruzione.
Dal progetto
alla
pratica,
quindi, e
non
viceversa.
A differenza
dell’opera
litica
informe, la
tecnica
introdotta
da Imhotep
presuppone
un lavoro
propedeutico
al cantiere.
Senza una
regia
estremamente
definita -
da cui far
scaturire
istruzioni
scritte o
verbali -
non è
possibile la
corretta
selezione ed
estrazione
delle
pietre;
oltretutto,
valutato che
il materiale
viene
trasportato
da lontano,
tali
prescrizioni
vanno
trasmesse a
distanza e
in modo
efficace. Si
intuisce,
conseguentemente,
come la
geometria e
la
scrittura,
indispensabili
alla
esecutività
materiale
dell’opera,
riconducano
il progetto
dell’architettura
in pietra
squadrata
all’interno
di un
ristretto
gruppo
sociale di
figure di
corte,
preparate e
ben
introdotte
nella
compagine
burocratica
dello stato.
Eugenio
Battisti, in
uno
stimolante
articolo dal
titolo
“Prima, il
monumento”,
conferma la
tesi del
fondamentale
ruolo svolto
dai disegni
e dai
modelli
nella
realizzazione
dell’architettura
faraonica.
L’architetto
e geologo
polacco
Wieslaw
Kozinski
assegna
un’importanza
maggiore ai
modelli
tridimensionali
in scala
rispetto ai
disegni
bidimensionali,
ritenendo i
primi più
illuminanti
nella
prefigurazione
delle forme
complesse e
dei
dispositivi
assemblativi
nati con
l’introduzione
della
tecnica
della pietra
da taglio;
la presenza
di plastici
accurati,
predisposti
e discussi
continuamente
in cantiere,
potrebbe
essere alla
base della
grande
precisione
raggiunta.
(11)
Gli egiziani
sono i primi
a
impegnarsi,
dopo
adeguati
addestramenti,
a frantumare
le rocce
delle
montagne che
si elevano
lungo il
corso del
Nilo,
riducendole
in blocchi
regolari da
ricomporre
poi in
cantiere. Si
mostrano,
oramai,
indipendenti
dai
condizionamenti,
dalla
dipendenza
nei
confronti
della
natura,
dalla
raccolta di
materiali
informi e
spesso
eterogenei
sparsi in
superficie;
la grande
architettura
monumentale
ricorre al
“prelievo”,
all’escavazione
della
roccia, che
è sottomessa
ad esigenze
e ad
aspettative
umane oramai
ambiziose.
I
costruttori
imparano a
conoscere le
pietre,
iniziano a
richiederne
di
specifiche,
con un certo
numero di
qualità
(meccaniche,
durative,
decorative,
simboliche)
che portano
a
selezionare
i litotipi
locali ma
anche ad
adottarne -
per impieghi
particolari
- altri che
provengono
da luoghi
lontani,
come nel
caso del
calcari
duri, dei
porfidi, dei
graniti.
Né saranno
trascurate
le pietre
più
specificatamente
ornamentali
come
l’alabastro,
il basalto,
la quarzite.
Le
caratteristiche
del
materiale
sono state
sicuramente
valutate, in
origine, in
base alla
durezza
delle rocce,
che ha reso
il taglio di
cava più o
meno
difficoltoso
ed
impegnativo.
Per via
empirica si
sarà formata
una
elementare,
ma efficace
classificazione
delle
diverse
pietre
disponibili:
molto
tenere,
tenere,
compatte,
dure,
durissime.
Così i
lapicidi e
gli
architetti
di corte,
che ne
veicolano le
applicazioni,
avranno
incluso fra
le prime le
arenarie,
fra quelle
intermedie i
calcari, fra
le ultime le
brecce, i
porfidi, i
graniti con
cui - a
partire dal
II millennio
a. C. - si
erigeranno i
monumentali
obelischi
monolitici.
Gli
strumenti
impiegati
per il
distacco e
la
lavorazione
dei blocchi
litici sono
realizzati
mediante
pietre dure
- calcare,
selce - con
le quali si
producono
scalpelli ed
efficaci
percussori
(con o senza
manico),
oppure
grazie
all’uso di
di materiali
metallici -
rame, bronzo
(dalla fine
del III
millennio a.
C.), ferro
temperato
(in età
tolemaica) -
per la
fabbricazione
di scalpelli
e picconi
corti a
doppia punta
destinati,
prevalentemente,
al taglio e
all’incisione
delle pietre
tenere.
Siamo solo
agli inizi
di una nuova
epoca, ma il
quadro è
tracciato,
si tratterà
solo di
ampliarlo,
perfezionarlo,
arricchirlo.
La maggior
parte dei
lavori
connessi
all’approvvigionamento
del
materiale
litico e
alla
costruzione
saranno
cadenzati in
funzione
delle piene
del Nilo nei
mesi più
caldi. Masse
ingenti di
operai -
spostate
stagionalmente
dalle
attività dei
campi -
lavoreranno
sotto lo
sguardo
severo dei
guardiani
(rais) che
sorvegliano
l’andamento
esecutivo
degli
edifici
monumentali
e verranno
alloggiati
in quartieri
appositamente
dedicati
alla
manodopera,
come
attestano i
reperti
presso la
piramide di
Chefren.
Man mano che
gli
archeologi
riportano
alla luce
dalle sabbie
di Giza le
abitazioni
degli operai
(qui
impiegati in
numero
impressionante,
dalle 20000
alle 30000
unità), le
cui braccia
robuste
hanno reso
possibile la
costruzione
delle
piramidi, si
delinea la
“fisionomia”
- sino ad
oggi
deformata -
degli uomini
e delle
donne,
protagonisti
dell’immane
sforzo
richiesto
dallo
spostamento
di grandi
blocchi
litici,
pesanti a
volte più di
40
tonnellate.
Benché, sin
dall’antichità,
tali operai
siano stati
descritti
come masse
di schiavi,
allontanati
forzatamente
dagli
affetti
familiari e
costretti a
lavorare
sotto la
minaccia
della
frusta, le
testimonianze
archeologiche
odierne ci
indicano che
si è
trattato di
egiziani
comuni,
oltretutto
assai
orgogliosi
di costruire
per il re e
l’eternità.

Le
piramidi di
Giza.

Oltre
Saqqara,
Giza
Saqqara
contiene in
nuce, come
s’è detto,
tutti gli
sviluppi
futuri
dell’architettura
in pietra
dell’Egitto
faraonico,
incarnandone
lo stato
arcaico,
originario.
Il passaggio
dalla “scala
di pietra”
di Imhotep
alle
piramidi a
facce piane
(la prima
della nuova
generazione
è quella di
Medun della
fine della
III
dinastia) si
può
interpretare
come frutto
di
un’evoluzione
naturale.
Con la IV
dinastia
siamo di
fronte alla
codificazione
matura della
tomba reale
quale
piramide
classica,
contraddistinta
anche da un
diverso
rapporto
rispetto ai
restanti
edifici
cultuali;
non più
insediata al
centro del
complesso
funerario,
come a
Saqqara, ma
fondale
maestoso e
puro di una
composizione
lineare che
si prolunga
fino a
raggiungere
la piana
alluvionale
del Nilo. Le
sistemazioni
delle
monumentali
tombe
faraoniche
non sono più
incentrate
sulla grande
corte per
l’apparizione
del sovrano
e sulle
particolari
architetture
destinate
alla
celebrazione
del giubileo
reale (festa
Sed), ma sul
tempio
inteso quale
sede di
culto dello
spirito del
re,
rappresentato
in varie
statue
nell’atto di
attendere
offerte. La
nuova
tradizione
ci mostra un
re
divinizzato,
rappresentante
del
dio-sole, e
assegna alla
piramide il
significato
di simbolo
dell’astro
di luce,
inteso quale
forza
suprema.
I faraoni
dell’Antico
Regno, nella
loro storia
dinastica,
com’è noto,
spostano
frequentemente
il luogo di
sepoltura e
le loro
colossali
tombe al
fine di
“ri-localizzare”
l’attenzione
dei loro
contemporanei
ed
“eclissare”,
in qualche
modo, lo
splendore
dei
monumenti
dei
predecessori.
Due
generazioni
dopo Zoser,
con la IV
dinastia, il
centro viene
trasferito a
quindici
chilometri a
nord di
Saqqara,
nella brulla
piana di
Giza sulla
riva
occidentale
del Nilo. Il
nuovo sito -
cosa assai
rara nella
storia
egiziana -
rappresenta
per gli
studi
archeologici
una delle
poche aree
di indagine
caratterizzate
da uno
sviluppo
omogeneo,
quanto a
continuità e
leggibilità
storico-cronologica.
Le piramidi
di Giza
possono
essere lette
come il
logico
sviluppo di
una ricerca
architettonica
che evolve
la “scala di
pietra” di
Saqqara,
caratterizzata
da una
concezione
chiaroscurale
e
pittografica,
verso un
corpo
volumetrico
che è
espressione
di puro
astrattismo
geometrico.
Il passaggio
dalla
piramide a
gradoni alle
piramidi con
superfici
lisce e
spigoli
netti,
capaci di
conferire
una presenza
“pura” alla
loro
architettura,
non si
spiega che
attraverso
una
“idealizzazione”
e una
“razionalizzazione”
del profilo
originario.
Mantenendo
l’ordinamento
generale del
“grande
tumulo”, se
ne
regolarizza
il modellato
a grandi
risalti
realizzando
una sorta di
tipizzazione
figurativa
della massa
litica, una
definitiva
ed
atemporale
stabilizzazione
geometrica.
Affermazione,
quindi, di
un ordine
astratto che
diventa
veicolo
eminentemente
intellettuale
e simbolo
teologico.
Nella piana
di Giza,
risultato di
un enorme
sbancamento,
frutto delle
mani
dell’uomo,
tre maestose
piramidi di
diversa
scalarità
sono
insediate
l’una
accanto
all’altra
secondo una
precisa
direzione
(da nord-est
a sud-ovest,
con il
limite
settentrionale
occupato
dalla Grande
piramide) ed
una
insuperata
purezza
compositiva
d’insieme;
si tratta,
com’è noto,
delle tombe
sorte per
ordine dei
faraoni
Cheope,
Chefren e
Micerino che
innalzano
meteoriti
geometrizzate
di calcare e
granito alte
rispettivamente
146, 144 e
65 metri.
Insediati a
poche
centinaia di
metri dalle
rive del
Nilo, questi
grandiosi
cumuli
litici
geometrizzati
formano una
lunga fila
di “montagne
artificiali”,
dalle forme
rigorose
orgogliosamente
intente a
sostanziare
una sfida
fra
l’architettura
della natura
e quella
dell’uomo.
Prive di un
vero e
proprio
spazio
interno
valgono
anch’esse -
come la
scala di
Zoser - per
il corpo
compatto
della loro
massa; hanno
un solo
esterno e
solo
attraverso
quello
“comunicano”.
La loro
scala è
quella
paesaggistica
e a Giza
tale
carattere
risulta
ancora più
evidente che
a Saqqara.
La piramide
di Cheope
s’impone fra
tutte le
altre. Siamo
di fronte
alla più
grande massa
compatta di
blocchi
litici che
sia stata
mai messa in
opera
dall’uomo:
oltre due
milioni e
cinquecento
metri cubi
per circa
sei milioni
di
tonnellate
di pietre,
alcune delle
quali pesano
più di
quindici
tonnellate.
Le colossali
dimensioni
(230x230x146,6
m, oggi il
tumulo
litico
risulta alto
137 m e si
conclude con
una piccola
piattaforma)
si arrestano
alla
superficie
esterna,
originariamente
liscia,
brillante e
riverberativa
dei raggi
del sole
grazie al
rivestimento
in blocchi
di calcare
bianco di
Turah,
smantellato
dagli arabi
fra il XIII
e XVII
secolo per
reimpiegarlo
negli
edifici del
Cairo. Salda
ed imponente
su una
superficie
di oltre
quattro
ettari, la
Grande
piramide
inclina a
51° 52’ le
sue quattro
facce,
orientandole
con una
precisione
sbalorditiva
verso i
punti
cardinali:
indicata,
sin
dall’antichità,
come una
delle Sette
meraviglie
del mondo
civilizzato
(prima per
vetustà ed
imponenza),
la piramide
di Cheope è
anche
l’unica che
risulti oggi
perfettamente
riconoscibile
e solida.
(12)
Ma a Giza
non si
coglie
unicamente
l’evoluzione
del “tipo
arcaico”
delle
piramidi. La
stessa
concezione
della
costruzione
in pietra
non è più
quella degli
inizi;
differenze
sostanziali
si rilevano
nel
succedersi
di poche
generazioni.
Il complesso
di Saqqara
fa caso a
sé; esso
rappresenta
lo stato
originario
della
tecnica
muraria a
piccoli
conci
“maneggevoli”,
facilmente
trasportabili,
messi in
opera senza
la necessità
di opere
provvisionali
particolari.
Elementi
litici di
dimensioni
più
significative
sono già
attestati
nel
monumento
funerario di
Horus Seklem
Khet,
successore
di Zoser,
dove i
blocchi di
pietra
utilizzati
per la
costruzione
del muro di
cinta
risultano
alti 50-52
cm, quasi il
doppio di
quelli di
Saqqara.
A Giza è da
registrare
l’impiego di
monoliti di
ancor più
ragguardevole
mole (tale
uso si
manterrà
invariato
per almeno
due
millenni)
che
testimoniano
il pieno
dominio del
materiale,
che viene
configurato
attraverso
un minor
numero di
lavorazioni
da parte dei
lapicidi,
sia pur a
fronte di un
impegno più
oneroso nel
trasporto e
nella messa
in opera dei
blocchi.
Accanto al
calcare,
rifinito e
messo in
opera con
tale
precisione
da suscitare
meraviglia
sin
dall’antichità,
quando le
piramidi
ostentano
intatto il
loro
rivestimento,
appare - in
una nuova
veste
d’impiego -
il granito
rosso di
Assuan,
estratto
dalle cave
localizzate
nei pressi
della prima
cateratta
del Nilo.
(13)
L’altro
gigante di
Giza non è
meno
imponente di
quello di
Cheope.
Chefren
innalza la
“montagna”
litica
regale fino
a 143 m
(oggi supera
di poco i
136 m,
conservando
in cima un
settore
dell’originario
rivestimento
in calcare
di Turah) e
utilizza gli
stessi
materiali
della tomba
del
predecessore,
a partire da
una base in
blocchi di
granito; ma
il motivo di
maggiore
interesse
del
complesso è
legato al
tempio basso
(o
inferiore)
dove
troviamo il
granito di
Assuan
impiegato in
modo
inedito.
L’edificio
sacro a
valle
s’impone per
i suoi
impressionanti
caratteri di
monolitismo
granitico.
L’organismo
spaziale è
serrato da
una
piattaforma
quadrata di
45x45m con i
muri esterni
(alti
12,5-13 m)
di calcare
locale in
forma di
mastaba
monumentalizzata;
all’interno
tutto è
scandito dal
rigore
geometrico
dell’angolo
retto. Chi
vi accede
riceve,
inizialmente,
l’impressione
di uno
spazio
labirintico,
senza
uscita; la
direzione di
percorrenza
è invece
solo celata,
momentaneamente,
dall’architetto
del tempio.
Due
ingressi,
prossimi
alle
estremità
della
facciata,
conducono ad
un vestibolo
dal quale,
attraverso
un
passaggio,
si giunge ad
uno spazio
ipostilo -
in forma di
atrio con
pianta a T
rovesciata -
scandito,
centralmente,
da una
teoria di
sedici
pilastri
monolitici
di granito a
sezione
quadrata e,
sull’inviluppo
murario, da
ventitré
statue (in
alabastro,
scisto e
diorite)
raffiguranti
Chefren
seduto. Una
di queste,
realizzata
in diorite,
è fra le più
eccellenti
della
statuaria
egiziana di
ogni tempo e
ci presenta
la
raffigurazione
del sovrano
sul trono,
con il
falcone Horo
che ne
stringe la
nuca con le
ali.
Nello spazio
centrale i
pilastri
levigati e
rilucenti
sono posti a
sorreggere
architravi,
anch’essi
granitici,
con ruolo di
appoggio
strutturale
per il
solaio di
copertura,
secondo lo
schema
canonico del
sistema
trilitico
dell’architettura
egiziana.
L’imposta
dell’intradosso
della sala,
attestata ad
un livello
più alto dei
muri
perimetrali,
consente
alla luce di
filtrare
diagonalmente,
attivando
nello spazio
ipogeo un
gioco di
fasci
luministici
che
valorizzano
le statue
del re,
disposte su
di una
pavimentazione
rilucente e
sontuosa di
alabastro.
Due bracci
si diramano,
lateralmente
dal
vestibolo
ipostilo; il
primo, a
sinistra,
conduce a
tre spazi
angusti e
ciechi
ricongiunti
attraverso
una schema a
dente di
pettine; il
secondo, a
destra,
attiva un
corridoio
oltre il
quale si
snoda la
rampa che
unisce il
tempio
inferiore a
quello
superiore,
recuperando
il
dislivello
di 45 m
esistente
fra i due
spazi
cultuali
della tomba
reale.
Nel tempio a
valle il
granito
s’afferma in
un uso
strutturale
ed
architettonico
ad un tempo
(il
materiale è
impiegato
anche per il
rivestimento
a forte
spessore dei
muri
interni)
superando,
così,
l’utilizzazione
eminentemente
“puntuale”,
limitata
agli
elementi più
sollecitati
della
costruzione
- così come
è attestato
dalla
ricerca
archeologica
sin dalle
mastabe
reali della
II dinastia
- e
avviandosi
ad assumere
un ruolo
sempre più
importante
nell’evoluzione
dell’architettura
egiziana.
Progressivamente
le sue
peculiari
qualità di
spinto
monolitismo,
di
resistenza
ai carichi e
all’azione
degli agenti
atmosferici
- a cui si
aggiunge il
pregio
estetico
connesso al
disegno
della
materia, al
suo colore,
alla
lucidabilità
superficiale
–porteranno
all’impiego
del granito
anche in
applicazioni
molto
particolari
come gli
slanciati
obelischi e
i grandiosi
fusti
colonnari
dei templi.
Sotto il
profilo
cronologico,
gli
obelischi
d’Egitto
hanno
valorizzato
per primi su
scala
monumentale
il
monolitismo,
la tenacia,
la durezza
del
materiale;
opere in
forma di
“alti
pilastri”,
si innalzano
dal suolo
liberi da
ogni
“impegno
architettonico”,
con la sola
finalità
rituale,
religiosa.
«Mai
monumenti
nella storia
dell’uomo -
afferma
Raniero
Gnoli -
hanno
attratto
culture così
diverse come
gli
obelischi.
Essi
nacquero
colle
piramidi
all’inizio
dell’Antico
Regno,
connessi
colla
religione di
Re-Atum, che
i teologi di
Eliopoli
vagheggiavano
di estendere
a tutto
l’Egitto. Un
obelisco
(dice
Plinio) è
una
rappresentazione
dei raggi
del Sole e
questo è il
significato
della parola
egiziana che
lo designa.
Quale che
fosse,
esattamente,
il loro
significato
originario,
gli
obelischi,
nel
rivolgimento
dei tempi e
delle
civiltà,
hanno sempre
continuato
ad essere,
per gli
uomini, il
simbolo e
come la
veste di una
straordinaria
essenza
spirituale.
La loro
capacità
simbolica ed
allusiva si
è di volta
in volta
modulata
secondo le
aspirazioni
ed i sogni
di coloro
che li
ammiravano,
mai spenta.
Re-Atum ed i
culti solari
dell’antico
Egitto, sono
solo una
tappa della
loro storia.
Cambise,
quando mise
a ferro e
fuoco Tebe,
comandò che
il grande
obelisco di
Tuthmosis
III fosse
risparmiato.
Augusto ne
portò due in
Roma, ad
ornamento
del suo
sepolcro. Un
obelisco,
quello
stesso
ammirato da
Cambise, è
l’ultimo
dono d’un
imperatore
all’antica
Roma.» (14)
Il litotipo
specifico
con cui sono
realizzati
tali “cippi”
monumentali
è il granito
rosso e
roseo di
Assuan; con
lo stesso
materiale,
ridotto in
blocchi di
significativo
spessore,
sono
rivestite le
parti
basamentali
delle
piramidi di
Chefren e
Micerino. Il
granito
s’impone
nella
realizzazione
degli
obelischi,
comunque,
solo ad una
certa data.
Dopo gli
esemplari di
“prima
generazione”
legati ai
programmi
dell’Antico
Regno (in
genere
manufatti di
dimensioni
contenute,
formati da
conci di
calcare
riconnessi
gli uni agli
altri, come
nelle comuni
opere di
murature) i
temi
dominanti
della
progettazione
diventano la
definizione
morfologica
del tipo e
il
gigantismo
dimensionale,
che vengono,
d’ora
innanzi,
sempre
associati
agli apporti
che solo la
materia
granitica
sembra poter
assicurare.
Il più
antico
obelisco in
granito rosa
a Heliopolis
(XX sec. a.
C.) è alto
circa 20 m;
risulta già
del tipo e
delle
proporzioni
canoniche,
che
rimarranno
fisse per
tutta la
restante
storia
egiziana:
“pilastro”
monolitico
assai
slanciato,
con la base
a sezione
quadrata,
progressivamente
rastremato
verso l’alto
fino alla
terminazione
a pyramìdion.
Nel Nuovo
Regno, fra
il XVI e il
XIII sec. a.
C., si
registra la
massima
diffusione
degli
obelischi,
posti a
sfidare,
attraverso
il
simbolismo
della massa
litica
“raggruppata”
intorno
all’asse
verticale,
gli altri
edifici di
pietra della
maestosa
tradizione
egiziana. In
genere
l’altezza è
dieci volte
il lato di
base:
l’obelisco
di
Hashepsowe a
Karnak è
alto 29,50
m, quello di
Thutmosis
III -
pervenutoci
infranto - è
di 37,77 m;
un’iscrizione
dello stesso
sovrano fa
riferimento,
addirittura,
ad un
obelisco di
57 m.
La ricerca
indirizzata
ad ottenere,
all’interno
dei
giacimenti
di cava, i
monoliti più
grandi
possibili
spinge gli
architetti
egiziani -
che
normalmente
innalzano
coppie di
obelischi
davanti ai
portali
degli
edifici
templari -
ad
utilizzare
blocchi
granitici di
diversa
dimensione,
senza
preoccuparsi
della
conseguente
asimmetria
compositiva.
Le aree di
approvvigionamento
di Assuan ci
hanno
restituito
una
testimonianza
eccezionale,
rappresentata
da un blocco
continuo di
proporzioni
ragguardevoli
(circa 30 m
di
lunghezza)
la cui
escavazione
è rimasta
incompiuta a
causa di
alcune
imperfezioni
del banco
roccioso.
Lungo i
fianchi la
roccia
risulta già
sezionata da
un ampio
scavo, che
mette in
evidenza la
regolarizzazione
geometrica
della
materia in
fase di
distacco; ad
un’estremità
è leggibile
la
fessurazione
della pietra
verificatasi,
sicuramente,
durante il
taglio, e
che ne ha
comportato
l’abbandono
per la
perdita di
quelle
caratteristiche
di integrità
e
perfezione,
considerate
irrinunciabili
nell’obelisco.
Questo
reperto ci
offre oggi
preziose
informazioni
sulle
antiche
tecniche di
scavo.
Un aspetto
che ha molto
appassionato
gli studiosi
del mondo
antico è
proprio la
modalità di
estrazione
del granito,
che è da
considerare
il litotipo
più duro fra
quelli
impiegati
dalla
civiltà
egiziana; la
sua elevata
durezza,
rapportata
alla
ristrettezza
di mezzi
tecnici
disponibili,
ha fatto
sorgere una
serie di
interrogativi
a cui la
ricerca
archeologica
ha dato, ad
oggi, solo
parziali
risposte.
Gli
strumenti
metallici in
rame o in
bronzo
(scalpelli,
picconi
corti a
doppie
punte, cunei
ecc.), molto
validi ed
efficaci per
l’escavazione
delle pietre
tenere
egiziane,
risultano
inutilizzabili
per la
roccia
quarzifera;
l’impiego di
rame
temprato,
per quanto
capace di
intagliare
il granito,
avrebbe
comportato
un consumo
proibitivo
di materiale
lungo le
fasi di
escavazione.
Per
l’estrazione,
notevolmente
lenta e
laboriosa,
di questo
duro
litotipo è
oramai
accettata la
tesi
dell’impiego
di pietre
sottoforma
di
rudimentali
strumenti di
percussione,
con o senza
manici. Il
gran numero
di martelli
e,
soprattutto,
di sfere di
dolerite
(roccia dura
di natura
basaltica)
rinvenute
nelle aree
di cava
confermano
come la
percussione
(o
“pestatura”),
costituisca
la modalità
operativa
fondamentale
sia
dell’escavazione
che della
lavorazione
successiva
del granito.
Le sfere di
dolerite
presentano
un diametro
variabile
dai 12 ai 30
cm e un peso
di 4-6 kg;
tali “bocce”
litiche
nelle varie
operazioni
sono
impugnate
con entrambe
le mani,
così come
appare in
alcuni
rilievi
scolpiti
provenienti
da Tebe.
Alle fasi di
escavazione
e
sgrossatura,
condotte
mediante
azioni di
battitura,
seguono
quelle di
rifinitura a
mezzo di
pietre che,
grazie ad
un’azione di
strofinio,
progressivamente
levigano e
lucidano il
materiale. È
molto
probabile
che la
sabbia
quarzifera
sia stata
utilizzata
quale
abrasivo
ideale a
basso costo
per le
lavorazioni
connesse
alla
segagione e
alla
foratura del
granito,
soprattutto
in presenza
dell’uso di
utensili
metallici in
rame e in
bronzo
(trapani
tubolari,
trapani a
punta
sottile,
seghe) dato
che “come il
diamante
viene
tagliato dal
diamante,
così è
naturale che
il quarzo
venga
tagliato dal
quarzo. (15)
Alfonso
Acocella
NOTE
* Il lungo
saggio
costituisce
il primo
capitolo de
L’architettura
di pietra,
Firenze,
Lucense-Alinea,
2004, pp.
624. Le foto
che
illustrano
il saggio
sono di
Giulio De
Cesaris e di
Davide
Turrini.
Scheda
dell'opera
"ARCHITETTURA
DI PIETRA.
Antichi e
nuovi
magisteri
costruttivi"
Blog:
architetturadipietra.it